l'aquila quadrilocale in zona centrale

GIOVANNA
3281650769
  • Abruzzo Regione
  • L'Aquila Provincia
  • l'aquila Comune/Città
  • A Classe energetica
  • 87 Superficie

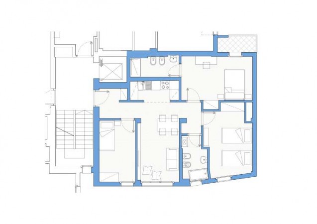
L'aquila, a pochi passi dall’università di scienze umane. appartamento sito al secondo piano in immobile antisismico in acciaio, ben illuminato, ammobiliato con mobili moderni, composto di 3 camere da letto, 2 bagni, 1 zona giorno con cucina.


Inserito il 24/08/2020

Inserzionista GIOVANNA
Anomalia nell'Annuncio? Stampa Pagina
Aggiungi ai Preferiti Invia ad un Amico
Stampa il Volantino
Annunci in Evidenza

Melissa

Melissa